Javea

Verkoopprijs: € 184000
Beschrijving

Dé notarisvergelijker van Nederland

Gelegen op de gevestigde urbanisatie ‘El Rafalet’ met moderne infrastructuur inclusief LED-straatverlichting en trottoirs, heeft dit perceel van meer dan 1.200 m² een project en een vergunning om onmiddellijk te beginnen met bouwen. Met prachtig open uitzicht over een met pijnbomen begroeide vallei die zich uitstrekt tot aan het indrukwekkende Montgo-massief, is het hellende perceel gelegen in een rustige omgeving op de bovenste hellingen van de urbanisatie.
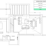
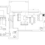
Het project is voor een moderne villa van twee verdiepingen met 3 slaapkamers met privézwembad, het ontwerp kan indien nodig worden aangepast of zelfs veranderd in een klassieke stijl. Met vertragingen op de planningsafdeling is het een meerwaarde om de bouwvergunning te hebben en dit perceel biedt veel waar voor zijn geld voor zowel een investeerder als een particulier die zijn droomhuis in de zon wil ontwikkelen.
Er is een bijkomend aangrenzend perceel van 1113m² (ook met vergunning en project) te koop voor 159.000 €.



Afbeeldingen

*klik op een foto voor een grotere weergave

Overige kenmerken
Aantal m2
Inhoud m3:
Perceeloppervlak m2:
1228
Aantal slaapkamers:
Aantal badkamers:
Ligging

Meest bekeken vakantiehuisjes
Vakantiehuisjes bladeren
Informatie

Neem contact op met de eigenaar van deze woning en plan direct met hem of haar de bezichting

Gegevens

Adres