La Corona

Verkoopprijs: € 2800000
Beschrijving

Dé notarisvergelijker van Nederland

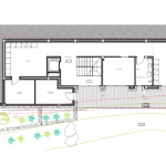
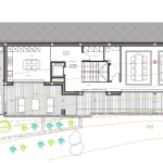
Modern luxury new build villa with sea view for sale in Javea, located in the exclusive area "La Corona". The project has the license to start construction and can be realized within 14 months. On the ground floor there is a spacious living room with a large, open and fully equipped kitchen from which you can go to the terrace. On the first floor there is a master bedroom with en-suite and private terrace, and 2 more double bedrooms that share a family bathroom. On the ground floor there is a fitness room, 2 double bedrooms that share a family bathroom and a laundry room. The layout can be changed slightly to your own taste, from almost every place in and around the house you have a spectacular view of the harbor and the bay of Javea.



Afbeeldingen
Overige kenmerken
Aantal m2
652
Inhoud m3:
Perceeloppervlak m2:
1200
Aantal slaapkamers:
4
Aantal badkamers:
4
Ligging

Locatie
Video
Meest bekeken vakantiehuisjes
Vakantiehuisjes bladeren
Informatie

Neem contact op met de eigenaar van deze woning en plan direct met hem of haar de bezichting

Gegevens

Adres